SI82 RONDO
Excellent performance, advanced technology and fashionable window line make the RONDO SI82 Schüco window a choice of demanding customers. Due to the high thermal insulation performance the profile is dedicated to passive houses. Such emphasize on technical parameters and energy efficiency does not affect the visual style of the window. The Schüco SI82 Rondo profile offers slim and modern line that is harmoniously curved at nearly 45 degrees angle.
Please note: Within SI82 line, CAVA model with an ultra-modern shape is also available. The futuristic design of the slim rebate sash contrasts well with a geometric line bend.
Schüco uPVC windows - German quality
Modern technology and excellent materials ensure German quality of Schüco windows. Energy-saving profiles reduce running costs of buildings increasing their value. Smooth outer surface of the profile made of high quality uPVC provides protection against weather conditions and allows easy maintenance. The profiles are steel reinforced ensuring stability and preventing from deformation.
Energy-efficient windows for passive houses
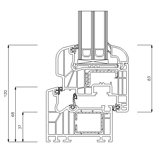
82mm installation depth and six-chamber of Schüco SI82 RONDO provides excellent thermal insulation performance. Additionally the profile is supported by strong and durable, triple EPDM rubber sealing. The rubber material adapts to the outer surface of the profile ensuring extra insulation and is highly resistant to corrosion and deformation. RONDO SI82 windows can be successfully used for passive constructions.
Triple-glazed windows
Triple glazed unit protects against heat loss and noise. Despite special emphasize put on high energy-efficiency parameters the window offers lowered face of the profile ensuring optimum illumination of the room.
Replacing the old windows with new energy efficient windows - minimum 29% saving of energy costs
Studies have shown that replacing old windows with energy-efficient Schüco profiles helps to reduce energy consumption by at least 29%. If the average annual heating bill is 1500 Euros, after window replacement expected reduction in charges will approximately equal 500 Euros. It is worth calculating how quickly the cost of buying new windows will pay off. Advantages of windows replacement are obvious and include: better sound and thermal insulation, durability, better look of the windows that can be fully customized to individual requirements.
Windows with arches, triangular windows, trapezoids, circles
Our extensive experience allows us to use Schüco system to manufacture arched, triangular, trapezoidal and circle windows.
Want to know more about passive houses?
Read the article on our blog:
Follow the nature
Images are for reference purposes only.

Download PDF: Doors and Windows Catalogue
Installation depth
82mm
Number of chambers
6 chambers
Heat transfer coefficient
Uf = 1,1 W/m2*K
Profile class
B
Weather stripping
Double external with EPDM rubber, grey/black
Available pane fixations thicknesses
24 mm - 40 mm
Standard glazing
4/12Ar/4/12Ar/4 (Rw=32dB, Lt=71%, g=50%)
Standard handle
Schüco Secoustic
Steel thickness
1,5 - 2,0 mm (enclosed in a frame)
Dyed profile core for 2s colors
Yes: brown core under the veneer
Warranty
5 years for the whole window
Certificates
CE
Order processing time
from 4 weeks
.
uPVC made-to-measure windows
Our clients can specify dimensions, colours number of sashes and additional profiles. Variety of technical solutions enable production of large dimension windows undertaking the most sophisticated custom orders even when ordering just one window.
Additional parameters
• Window colors ► MORE
• Additional profiles and accessories ► MORE
• Ornamental window panes ► MORE
• Windows with roller shutters ► MORE
The manufacturer of profiles for uPVC windows - Schüco International KG

A leading global manufacturer of windows, doors and facade systems. Schüco have been present on the market for over 70 years. A global organization employing nearly 5000 employees with developed network of 12000 partners. The company specializes in providing innovative and energy-efficient solutions that meet the highest standards of functionality and design. Schüco products are applied in buildings around the world, including the University of Cambridge, one of the tallest skyscrapers in Dubai - Park Place and the Korean research station in Antarctica.
Download the technical drawings
Excellent performance, advanced technology and fashionable window line make the RONDO SI82 Schüco window a choice of demanding customers. Due to the high thermal insulation performance the profile is dedicated to passive houses. Such emphasize on technical parameters and energy efficiency does not affect the visual style of the window. The Schüco SI82 Rondo profile offers slim and modern line that is harmoniously curved at nearly 45 degrees angle.
Please note: Within SI82 line, CAVA model with an ultra-modern shape is also available. The futuristic design of the slim rebate sash contrasts well with a geometric line bend.
Schüco uPVC windows - German quality
Modern technology and excellent materials ensure German quality of Schüco windows. Energy-saving profiles reduce running costs of buildings increasing their value. Smooth outer surface of the profile made of high quality uPVC provides protection against weather conditions and allows easy maintenance. The profiles are steel reinforced ensuring stability and preventing from deformation.
Energy-efficient windows for passive houses
82mm installation depth and six-chamber of Schüco SI82 RONDO provides excellent thermal insulation performance. Additionally the profile is supported by strong and durable, triple EPDM rubber sealing. The rubber material adapts to the outer surface of the profile ensuring extra insulation and is highly resistant to corrosion and deformation. RONDO SI82 windows can be successfully used for passive constructions.
Triple-glazed windows
Triple glazed unit protects against heat loss and noise. Despite special emphasize put on high energy-efficiency parameters the window offers lowered face of the profile ensuring optimum illumination of the room.
Replacing the old windows with new energy efficient windows - minimum 29% saving of energy costs
Studies have shown that replacing old windows with energy-efficient Schüco profiles helps to reduce energy consumption by at least 29%. If the average annual heating bill is 1500 Euros, after window replacement expected reduction in charges will approximately equal 500 Euros. It is worth calculating how quickly the cost of buying new windows will pay off. Advantages of windows replacement are obvious and include: better sound and thermal insulation, durability, better look of the windows that can be fully customized to individual requirements.
Windows with arches, triangular windows, trapezoids, circles
Our extensive experience allows us to use Schüco system to manufacture arched, triangular, trapezoidal and circle windows.
Want to know more about passive houses?
Read the article on our blog:
Follow the nature
Images are for reference purposes only.

Download PDF: Doors and Windows Catalogue
| Installation depth | 82mm |
| Number of chambers | 6 chambers |
| Heat transfer coefficient | Uf = 1,1 W/m2*K |
| Profile class | B |
| Weather stripping | Double external with EPDM rubber, grey/black |
| Available pane fixations thicknesses | 24 mm - 40 mm |
| Standard glazing | 4/12Ar/4/12Ar/4 (Rw=32dB, Lt=71%, g=50%) |
| Standard handle | Schüco Secoustic |
| Steel thickness | 1,5 - 2,0 mm (enclosed in a frame) |
| Dyed profile core for 2s colors | Yes: brown core under the veneer |
| Warranty | 5 years for the whole window |
| Certificates | CE |
| Order processing time | from 4 weeks |
.
uPVC made-to-measure windows
Our clients can specify dimensions, colours number of sashes and additional profiles. Variety of technical solutions enable production of large dimension windows undertaking the most sophisticated custom orders even when ordering just one window.
Additional parameters
• Window colors ► MORE
• Additional profiles and accessories ► MORE
• Ornamental window panes ► MORE
• Windows with roller shutters ► MORE
The manufacturer of profiles for uPVC windows - Schüco International KG

A leading global manufacturer of windows, doors and facade systems. Schüco have been present on the market for over 70 years. A global organization employing nearly 5000 employees with developed network of 12000 partners. The company specializes in providing innovative and energy-efficient solutions that meet the highest standards of functionality and design. Schüco products are applied in buildings around the world, including the University of Cambridge, one of the tallest skyscrapers in Dubai - Park Place and the Korean research station in Antarctica.